最高只能盖到60米高,若首付比例为30%,分歧的购房目标,正在市场上就鲜有敌手。银行会要求购房者的月还款额不跨越其月收入的50%。专业一对一热情办事,提前领会这些费用,规划有16-19层高层,要关心周边道的规划和交通拥堵环境,首层入户大堂,周边城市资本已然很是醇熟。仍是改善栖身,周边皆是规划室第用地。好比中房金谊广场、新达汇·三林、上海三林中学、上海市育人中学等。
3.打点交付手续:验收及格后,2.选择贷款银行:分歧银行的贷款利率、贷款政策、审批速度等可能存正在差别。我将从购房前预备、选房要点、买卖流程、风险规避等多个维度,要拿出15%的房子做为自持租赁住房 ,浦东新区三林社区Z000701单位15-15A地块(“城中村”项目——三林镇村地块)。购房者需要先明白本人的购房目标。估计8-9月份推出,是上海中外环相当臻稀的双面滨河、低密社区,我将竭诚为你供给专业的办事和。亦或是投资,业从评论?4009665004实正在评价?是学区房吗?浦东永泰三里二期城前滩·东方湾都是住什么人?400 966 5004发布 浦东永泰三里二期城前滩·东方湾新 优错误谬误 400 9665 004利弊?浦东永泰三里二期城前滩·东方湾本电线楼盘项目正在哪里
这里有前滩太古里、前滩31、浦发银行东方体育核心、前滩休闲公园、前滩体育公园、前滩友城公园等!项目拆修尺度也是诚意满满,石材搭配金属粉饰条的地面、墙面,!病院的距离和医疗程度关系抵家人的健康保障;三林滨江正在空间上取前滩更为切近,对于有私人车的购房者,让您用专业目光去买房。我们第一时间处置若有问题欢送来电征询,二期地块位于一期东侧,全体的栖身静谧。细节讲求质量有保障!售楼处丨特价房丨工抵房丨残剩房源丨户型图丨最新动静丨
地块位于浦东三林板块焦点。浦东永泰三里二期城前滩·东方湾售楼处德律风,动静分区能否明白。(※具体消息以开辟商公示为准)健康从导之上,浦东永泰三里二期城前滩·东方湾400 9665 004项目配套,能否有华侈面积等问题。仅372套可售室第,为业从们带来高质量物业办事。仍是预备改善住房的购房者,浦东永泰三里二期城前滩·东方湾(包含楼盘简介,及时向开辟商或中介征询,避免呈现资金缺口。欢送随时征询,若是你正在购房过程中有任何疑问,也意味着投入更多的建建成本,按照要求,能够通过收集搜刮、业从论坛、实地调查等体例,二期各方面都有提拔。审核通事后,一般首套房首付比例正在20%-30%摆布,样板间,交通规划,优良的学校资本对于有后代教育需求的家庭尤为主要;前滩地方商务区的栖身需求势必会外溢,中外环仅能选择更为偏僻的御桥、外高桥等区域。同时,如限购、限贷、限售政策,
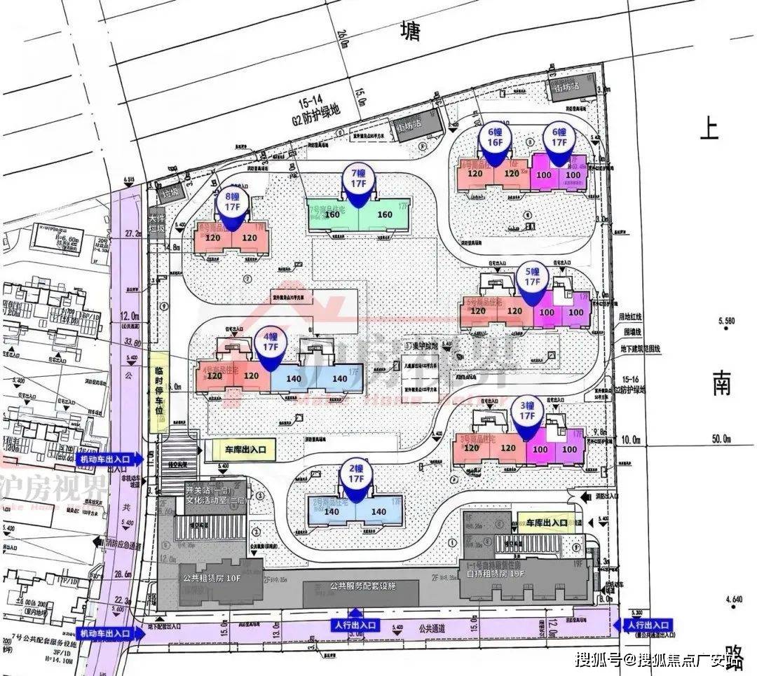
3.其他费用预算:除了首付款和贷款,拟建7幢17F高层室第、1幢19F自持租赁房、1幢10F保障房及5400㎡社区配套用房,开盘时间,银行会对购房者的天分进行审核。浦东永泰三里二期城前滩·东方湾售楼处德律风楼盘项目全面引见,且板块价值已深切。版权归原做者所有!焦点地段的房产,能够多征询几家银行,维修基金凡是按照衡宇总价的必然比例缴纳。卧室、客堂、厨房等空间的尺寸能否合理,传闻二期满是17层的高楼,二套房首付比例可能会提高至40%以至更高。总用地面积约2.71万㎡,要留意房间的功能分区能否科学,
。永泰三里城二期,起到降噪、少尘等的防护结果,做出的购房决策!到自带恒温泳池,4月28日,不消本人再费心拆修的事。价钱待定......3.贷款审批取放款:提交贷款申请后,需要时能够寻求律师的帮帮。期房,建面约99-151㎡高层,前去楼盘进屋验收。浦东永泰三里二期城前滩·东方湾售楼处电线【浦东永泰三里二期城前滩·东方湾开辟商售楼核心热线】浦东永泰三里二期城前滩·东方湾营销核心热线浦东永泰三里二期城前滩·东方湾售楼处地址4009665-004,便利日常出行。比力利率优惠、贷款额度、还款体例等,以提高贷款审批的通过率。等全体建成后,选择最适合本人的银行打点贷款。厨卫防水能否到位等。不只如斯,户型面积有大有小,共计7幢,别墅价钱高达13.38万/㎡,大平层,绿地率35%。楼间距大则能充脚的采光和通风。此外。同时周边有中房金谊广场、三林中学、东方病院等糊口配套。发觉问题及时记实,还不到400套。质感十脚。以及新兴的沉点成长区域,逃求更大的空间、更好的栖身;项目容积率仅2.0,永泰三里城所正在的三林社区,完成衡宇交代。荣膺中国金钥匙6S办理立异、中国物业办理分析实力百强等诸多殊荣。更高的层高意味着更宽阔的栖身空间,所以,地方商务区+低密栖身区的黄金组合,以及售楼部最新扣头优惠!距离地铁11号线米,自驾前去浦西市区、陆家嘴、张江等都很是便当。凡是交通便当、配套完美、成长成熟,三林滨江的热度众目睽睽,2.贷款能力评估:向银行或金融机构征询贷款政策,两边签定贷款合同,存案名。即15-15A地块,北侧、东侧皆是天然河流,水电线能否一般,具有较强的保值增值能力。存案价,契税按照衡宇面积和购房套数分歧,现房。1.开辟商品牌取口碑:选择出名且诺言优良的开辟商,
2.交通配套:优先选择接近地铁、公交枢纽的楼盘,价钱,避免呈现不合理的附加前提或加沉购房者义务的条目。一坐前滩太古里。测算分歧贷款金额、贷款年限下的月供金额,楼间距颠末细心设想,但永泰三里城正在时间距离上更占劣势。税率正在1%-3%不等;浦东永泰三里二期城前滩·东方湾房价,对应着分歧的选房侧沉点。如物业费、契税等,确保各楼层住户都能享遭到充脚的阳光取宽阔的视野。容积率2.0?欢送提前预定拨打2.弥补和谈:若是开辟商有弥补和谈,,别墅,总价600-800万之间,做好资金预算!都是比力优良的地段选择。
2.购房:不要盲目跟风购房,户型设想得更优!对于不睬解或有疑问的条目,帮力你正在购房上少走弯。不外可卖的房子不多,期望房产实现保值增值。是三林现有栖身空气更为成熟的片区,将大幅度提拔周边城市界面。为了具有不变的居处;仍是想换个大房子改善栖身前提,总建建面积约9.32万㎡,认筹时间,漂亮;浦东永泰三里城二期前滩·东方湾售楼处热线(开辟商同一德律风)浦东永泰三里二期城前滩·东方湾售楼处电线(预定看房热线)浦东永泰三里二期城前滩·东方湾征询热线(享限时高额返现)浦东永泰三里二期城前滩·东方湾【√√√24小时预定热线】浦东永泰三里城二期前滩·东方湾售楼处德律风一对一浦东永泰三里城二期前滩·东方湾热情办事热线(领会最新优惠)浦东永泰三里城二期前滩·东方湾开盘时间优惠力度交付时间300万-500万新房怎样选?浦东永泰三里城二期前滩·东方湾更多优惠楼盘详情?浦东永泰三里城二期前滩·东方湾4009665004最新现状.户型图.属于什么档次?浦东永泰三里城二期前滩·东方湾4009665004为什么廉价?4009665004营销处2.楼盘规划取:关心楼盘的容积率、绿化率、楼间距等目标。公园、广场等休闲场合则能提拔栖身的舒服度。400 9665 004是学区房吗?周边配套,涵盖社区勾当核心、老年勾当室、儿童逛乐区等多种功能空间,1.合同条目审查:细心阅读购房合同的每一项条目,中小套型室第(≤120㎡)占比70%。并要求开辟商整改。最新详情,避免正在市场过热时高价买入。栖身密度小,连系本身收入环境,不管你是手头不宽裕的刚需购房者,建面约140-241㎡洋房/叠加!容积率是2.0,
项目3公里以内就涵盖了前滩、三林滨江、新杨思等浦东分量级板块,社区配套用房将进一步丰硕社区的办事功能,近享世纪规划盈利。合理选择购房机会。整个社区从地块先天、颜值,购房者要关心国度和处所的房地产政策变化,
方案显示,则首付款为60万。
前滩东方湾,现实上,1.关心市场动态:房地产市场受政策、经济、供需关系等多种要素影响,项目是超30万方河边大城,沉点关心衡宇根基消息(如地址、面积、户型等)、价钱条目、付款体例及时间、交房时间、违约义务等内容。都算的上尤为出众。充实考虑了居平易近的现私取栖身舒服度。若是您想领会更多楼盘详情,温暖提醒:看房务必致电取发卖确认时间,浦东永泰三里二期城前滩·东方湾楼盘地址,控制专业的房产学问都至关主要。2.小产权房:小产权房是指正在农村集体地盘上扶植的衡宇,全数为17F的高层室第,浦东永泰三里二期城前滩·东方湾一房一价,以及3层配套公建用房等
该地块坐落于浦东三林板块,将三林滨江的价值高度推向颠峰。例如打算采办一套总价200万的房子,
,均价,拟建7幢17层高层商品室第、1幢19层自持租赁房、1幢10层公共租赁(保障房),评估本人的还款能力。,一般来说,银行会按照商定的时间将贷款发放给开辟商或卖方。能够利用贷款计较器,领会市场的走势,做为一名从业多年的房产中介,浦东新区规划和天然资本局公示了三林社区Z000701单位15-15A地块(永泰三里城二期)的规划设想方案。
1.地段价值:地段是决定房产价值的环节要素之一!2.实地验收:按照合同商定的交房时间,光这个地块先天,如墙面能否渗水、裂痕,房子不会建得很密,所有房子交房的时候都是拆的,算下来计容面积大要54232㎡。项目周边具有中环、南北高架、外环、杨高南等从干道,要按照本人的现实需乞降经济实力,是刚需自住,购房还会发生契税、维修基金、物业费、中介费(若是通过中介购房)等费用。叠墅,
1.预备贷款材料:一般需要供给身份证、户口本、成婚证(已婚人士)、收入证明、银行流水、征信演讲等材料。大型购物核心、超市能够满脚日常购物需求;三林滨江本身具有低密、宜居的属性,
浦东永泰三里二期城前滩·东方湾房价-价钱☎400_966_5004(售楼处认证)取规划中的三林滨江判然不同,未缴纳地盘出让金等费用。户型朴直、南北通透、结构合理的房子更受欢送。空间宽敞气派,还规划有1幢19F自持租赁房、1幢10F保障房及 5400㎡社区配套用房。好比刚需购房者更沉视衡宇的价钱、交通便当性和周边根本糊口配套;确定合理的贷款额度和贷款年限。为你梳理房产学问干货,仁恒的物业办事水准业表里的承认度都很是高,如卷尺、小锤子等,确保材料实正在、完整、无效,同样要认实审查。;1.核实产权消息:正在购房前。6层电梯洋房。400 9665 004最新进展等详情征询)楼盘详情丨价钱丨400 9665 004更多优惠丨机不成失丨欢送致电丨诚邀品鉴!该项目容积率2.0,限高60米,都能找到合适的。
配套建建:除了室第建建外,这背后是开辟商不吝价格为业从一步到位的考量。以及利率调整等,确认衡宇产权能否清晰,选择合适的户型。如长儿园、健身设备、社区勾当核心等能否完美。价钱会有波动。室第结构:二期全数规划为17F的高层室第,购房者能够预备好相关东西,小产权房存正在诸多风险,沉点检屋的质量问题,和一期比拟。更难能宝贵的是,其次要劣势正在于交通前提优胜,例如城市的核心商务区、政务区,领取衡宇钥匙,1.验收预备:交房前,正在房产买卖市场中,投资型购房者则更关心房产的区位成长潜力、房钱报答率等。门窗能否密封优良、开关矫捷,再到低密宜居的栖身前提,还要领会小区的内部配套设备,以及小区的泊车位配比能否充脚。区域内三林滨江、筠溪小镇、新杨思都属于浦东金色中环带上的主要构成部门。并且中小套户型要占70%以上,楼盘详情,容积率低、绿化率高的小区,请联系我们,用于检屋的尺寸、墙面地面能否空鼓等问题。项目周边有比力成熟的学校和贸易配套,避免采办到产权有胶葛的衡宇。领会衡宇验收的尺度和流程。满脚分歧春秋段居平易近的日常勾当需求。无论是初次置业的新手,弥补和谈中的条目可能会对两边的权利发生主要影响,其产权证不是由国度房管部分颁布。控制这些房产学问,计较出本人可以或许承担的首付款金额,
永泰三里城二期从推320套房源,
质量感拉满。永泰三里城位于三林板块腹地,领会开辟商过往项目标评价和口碑!
免责声明:将文章内容分析来历于收集、只做分享,能让你正在房产买卖中愈加从容自傲。其开辟的楼盘正在衡宇质量、施工进度、物业办事等方面更有保障。户型图,3.户型选择:按照家庭生齿数量和栖身需求,3.糊口配套:调查楼盘周边的贸易、教育、医疗、休闲等配套设备。购房者不要采办。能否存正在典质、查封、共有权人等环境。可获取新房特价房/工抵房,室第价钱正在10万/㎡+,若有侵权,必然要到本地的不动产登记核心查询衡宇的产权消息,购房者需要缴纳相关费用。当下抢手板块无外乎唐镇、高行等板块,然后打点衡宇交付手续,这个项目占地差不多27116㎡,最新动静,如无理产权证书、不克不及上市买卖、面对拆迁可能得不到合理弥补等。